Posts: 1,101
Threads: 6
Joined: Aug 2014
Reputation:
99
(09-08-2017, 07:07 PM)Pheidippides Wrote: Just noticed that the new building has a pass through to the parking lot from Willis that is aligned with the current mid-block crossing.
I wonder what the plan for that would be when the lot behind gets redeveloped?
Access to the multi level parking garage that will be in the centre of the buildings?
Coke
Posts: 2,015
Threads: 11
Joined: Oct 2014
Reputation:
77
Sidewalks nearing completion:
Everyone move to the back of the bus and we all get home faster.
Posts: 2,015
Threads: 11
Joined: Oct 2014
Reputation:
77
New financial business in the old Rogers/Olivia/Thryve store:
Everyone move to the back of the bus and we all get home faster.
Posts: 77
Threads: 2
Joined: Jan 2015
Reputation:
12
04-10-2018, 08:58 AM
(This post was last modified: 04-10-2018, 09:00 AM by UrbanCanoe.)
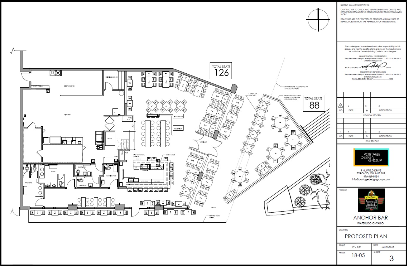
City Council approved a 5 year lease for a patio in the Waterloo Public Square for a new restaurant in the Uptown Shops. It will be located in the garden area where the Christmas tree and menorah are located each year. I've outlined the location in RED and the other patio areas in BLUE (these patio areas are not on public property). The site plan included in the council package indicates the restaurant will be " Anchor Bar" specializing in buffalo wings... yet another bbq restaurant in the Uptown.
Posts: 8,015
Threads: 39
Joined: Jun 2016
Reputation:
216
Seems more or less a good plan (I'm sure the tree can be moved, even just slightly).
My biggest concern would be how narrow the sidewalk along Willis Way will become. I'm not even sure how they will achieve a patio there, there's no room for dividers that I assumed were required for serving of alcoholic beverages. Of course, it wouldn't be an issue if we weren't devoting so much of the road to parking.
Posts: 1,221
Threads: 0
Joined: Mar 2015
Reputation:
40
(04-10-2018, 10:55 AM)danbrotherston Wrote: My biggest concern would be how narrow the sidewalk along Willis Way will become. I'm not even sure how they will achieve a patio there, there's no room for dividers that I assumed were required for serving of alcoholic beverages. Of course, it wouldn't be an issue if we weren't devoting so much of the road to parking.
The simple solution, which I think you are hinting at, is to remove those three parking spaces where patio space is being planned. That is, it would be simple if it were simple to eliminate on-street parking.
Posts: 10,840
Threads: 67
Joined: Sep 2014
Reputation:
392
(04-10-2018, 12:01 PM)timc Wrote: (04-10-2018, 10:55 AM)danbrotherston Wrote: My biggest concern would be how narrow the sidewalk along Willis Way will become. I'm not even sure how they will achieve a patio there, there's no room for dividers that I assumed were required for serving of alcoholic beverages. Of course, it wouldn't be an issue if we weren't devoting so much of the road to parking.
The simple solution, which I think you are hinting at, is to remove those three parking spaces where patio space is being planned. That is, it would be simple if it were simple to eliminate on-street parking.
Given how much parking there is nearby it shouldn't be difficult. But this is Waterloo ..
Posts: 8,015
Threads: 39
Joined: Jun 2016
Reputation:
216
(04-10-2018, 12:24 PM)tomh009 Wrote: (04-10-2018, 12:01 PM)timc Wrote: The simple solution, which I think you are hinting at, is to remove those three parking spaces where patio space is being planned. That is, it would be simple if it were simple to eliminate on-street parking.
Given how much parking there is nearby it shouldn't be difficult. But this is Waterloo ..
Both very good points, although I'd point out that even just "removing" the parking is easier said than done. The level of the ground is wrong, and poles are in the wrong place.
I realize additionally looking at that photo, the road is stupidly overbuilt, there is a huge turn lane and I've never ever seen a line of traffic there. What a waste of money!
Posts: 1,221
Threads: 0
Joined: Mar 2015
Reputation:
40
It seems especially overbuilt with an all-way stop at that corner.
Posts: 8,015
Threads: 39
Joined: Jun 2016
Reputation:
216
What's that hashtag #autoloo.
Posts: 1,607
Threads: 8
Joined: Sep 2014
Reputation:
62
Gourmet Pizza also has a few patio tables outside along Willis Way and it doesn't seem to affect the sidewalk. I'm not sure if the sidewalk is the same width in both locations.
Posts: 10,840
Threads: 67
Joined: Sep 2014
Reputation:
392
(04-13-2018, 01:12 PM)nms Wrote: Gourmet Pizza also has a few patio tables outside along Willis Way and it doesn't seem to affect the sidewalk. I'm not sure if the sidewalk is the same width in both locations.
Based on Google's satellite photos, it's slightly narrower closer to King St, but it's not a huge difference.
Posts: 2,015
Threads: 11
Joined: Oct 2014
Reputation:
77
I noticed a number (4?) of new leased stickers on the windows of many of the interior units. One looks to be a medical/dental/massage set-up. The one28 condo has a presence now as well.
Everyone move to the back of the bus and we all get home faster.
Posts: 328
Threads: 9
Joined: Aug 2014
Reputation:
4
08-04-2020, 03:12 PM
(This post was last modified: 08-04-2020, 03:26 PM by TMKM94.)
This article mentions a few businesses have closed at Waterloo town Square again. https://www.waterloochronicle.ca/news-st...f-program/
Posts: 838
Threads: 10
Joined: Jul 2017
Reputation:
43
08-04-2020, 03:21 PM
(This post was last modified: 08-04-2020, 03:22 PM by robdrimmie.
Edit Reason: removed unrelated nostalgia. related nostalgia can stay
)
David's Tea, Hearts and Flowers and RetroReplay (which is still operating online) are the business mentioned as being closed in the article, for those keeping track.
I mourn this mall's continued demise a little, still. It was practically my second home from like, 1987 until 1994 or thereabouts. I'd love for someone to tear the whole thing down and build a couple of great towers, though I say that with no meaningful understanding of what that would entail.
|